技術と知識をフルに活かした、
スムーズな土地区画整理事業。
弊社では、土地区画整理事業の立ち上げから完了まで、総合的なサポートを行っています。各種測量業務とも密な連絡体制をとっているため、地区界測量、街区確定、画地確定、出来形確認測量等との連携もスムーズです。
土地区画整理事業の流れ
土地区画整理事業は、おおまかに以下の流れを辿ります。フローに沿って私たちの業務をご説明します。

①調査・分析
まちづくりの将来イメージから、基本構想を作成するための基本的な調査を行います。それらに基づき、土地区画整理事業をはじめ、街路事業、地区計画など、どのような手法が最も適しているか、総合的なまちづくりの調査・分析を行います。
②事業の計画・事業化(認可)の検討
まちづくりでは、都市全体の計画のほかに、地区レベルといった生活者の目線での取り組みがあります。住民の生活に欠かせない道路・公園の整備や建物のルールなど、住民の合意形成を図りながら、きめ細かな基本計画・事業計画の作成を行っています。
- 基礎データの整理
- 住民の合意形成支援
(アンケート調査、説明会支援など) - まちづくりの方向性の検証、基本構想の作成
- 事業手法の比較・検証
- 各種事業計画の作成
- 各種パースの作成


【住民説明会の様子】

【基本計画図】
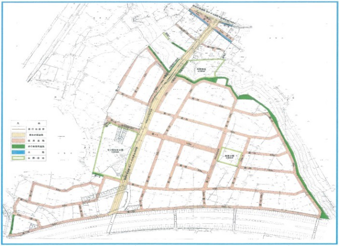
「平成28年度野村桔梗ヶ原土地区画整理事業 計画・設計業務(平成28年7月)」では、市街地に隣接する近郊農地の有効活用を目指し、市街化編入とその地域性を生かした地区整備計画(案)を策定しました。
③換地設計
事業認可後、換地設計を速やかに行います。換地設計基準(組合では換地規程)・土地評価基準を作成し、それらにもとづいて整理前の関係権利者の土地を評価、整理後の街区に割り込み、換地計画案(仮換地の指定案)を作成します。換地計画案の作成後、関係権利者への個別説明会などを行い、関係権利者の要望を検討し、換地設計が完成します。
土地評価や換地の割り込みでは、各地区・各権利者により多種多様なケースが生じますが、どのようなケースでも、技術者があらゆる場合を想定し、速やかに対処します。

【換地の仕組み】

【換地設計図】
④仮換地指定
換地設計が完成した後、道路や公園などの工事を行うため、換地設計にもとづき仮換地の指定を行います。関係権利者の土地はその土地に関する権利が仮換地先に移ることとなり、仮換地先で土地の使用などが可能となります。手続きとしては、関係権利者の同意(個人施行)、総会または総代会の同意(組合施行)、土地区画整理審議会の意見聴取(公共団体施行)を経て、仮換地の指定となります。

⑤移転
建物等の移転では、技術者が建物の調査、移転計画、移転補償費の算出まで総合的にサポートします。移転交渉が難航し、事業が停滞している場合、さまざまな要因が考えられ、原因解明と対応策に関しては専門的な知識と経験が求められます。なお、街路事業実施時における移転補償についても対応しています。

【移転計画図】

◆直接施行
土地区画整理事業を行う場合、必ずしも権利者の方に同意して頂けるわけではありません。その場合、建物の移転ができず工事が遅れてしまうなど、事業のスムーズな執行ができなくなります。
施行者は事業の進捗を図るため、あらゆる努力をしなければなりませんが、数年経っても移転に同意頂けないことがあります。そのような場合、事業を終了できないことでの資金的な負担や移転先での使用収益の開始ができないなど、他の権利者に著しく不利益が生じる可能性があります。
そのため、直接施行という手法を用いて、建築物等の移転を施行者が実施することで事業の終了を目指します。直接施行を行う場合は、さまざまなケースが想定されるため専門家のコンサルティングが必要です。
⑥土木設計・工事
公共施設等の工事では、道路設計、雨水排水、公園計画・設計、調整池設計、宅地造成計画、上下水道計画・設計から施工管理まで、土地区画整理事業での関連する全ての土木関連業務を遂行する技術者が対応いたします。

【宅地造成設計図】

【施行後】
⑦換地計画・換地処分
土地区画整理事業の大詰めは換地計画、換地処分です。換地計画の内容は、換地設計、各筆換地明細、各筆各権利別清算金明細、保留地その他の特別の定めをする土地の明細、その他国土交通省令で定める事項となります。換地計画は2週間の公衆への縦覧、意見書の処理が行われたあと、換地計画の認可又は決定となります。
換地処分は、換地計画に係る区域内の全てについて工事が完了した後、遅滞なく行わなければなりません。その内容は、関係権利者に換地計画において定められた事項を通知することで行います。換地処分の公告後には、登記の書き換えも行います。
⑧清算
土地区画整理事業での清算は、簡単に言えば本来自分のもらうべき権利に対して、なんらかの理由で余分にもらってしまったり、少し足りなかった場合に、お金によって調整することを意味します。
例えば、本来もらうべき権利が1000個("個"は権利の単位とします)だったAさんが、換地後の土地の評価で950個しか権利をもらえない一方で、本来もらうべき権利が2000個だったBさんが、換地後の土地の評価で2050個もらっていた場合、Bさんは余分にもらった50個分の権利を、Aさんに金銭として支払うことで清算を行います。
実際の事業では多くの関係権利者がおり、調整が複雑です。清算管理は、土地区画整理事業において最後の重要な作業といえます。
◆事務運営
弊社では、事業が効率的かつ確実に完了できるよう事業運営に関する支援を行っております。事務局運営補助として人材派遣により技術的、事務的支援を行っておりますが、事務代行として事務局そのものを受託して行うこともあります。

【総会の様子】
◆各種測量・図化
事業をはじめるには、正確な測量データが不可欠です。高精度の現況測量データの作成、施行地区を決定する地区界測量、その他測量関連業務は、弊社の得意分野であり、また、GNSS測量による高精度な測量成果と、情報化施工(i-Construction)の導入推進など、新技術を取り入れながら土地区画整理事業を効率的に進めています。
生産緑地の営農環境等改善
東京都世田谷区内で生産緑地地区の指定、相続税猶予の適用を受けている農地において、現在の営農環境の改善や土地条件の改善を目的に、道路・公園・下水道等を整備するための土地区画整理事業に取り組みました。
土地区画整理事業の実施にあたっては、地区の大半が生産緑地地区であったため、農地を保全する方針を第一に検討し、農業従事者等の意向を踏まえながら行政との一致点を見出し、調査・測量・計画・設計・工事監理・保留地販売・登記など事業全体にわたって支援を行いました。

【工事前】

【工事後】
この事例の特徴
地区周辺では戸建て住宅等の開発が進み、通り抜け道路を計画することが難しい状況でしたが、隣接地の売却情報をうまく活用し通り抜け道路を計画することができました。さらに隣接部の調整が契機となり、国有地(畦畔)の払い下げ手続き等もサポートできたことで、土地活用の幅が広がりました。
また、所有者に新たな負担が生じないよう、認可前に保留地の売却先を提案し、事業の到達点に納得して頂いた上で進めることができました。
これからの土地区画整理事業では、きめ細かな取組みと、短期間で確実な事業完了の提案が重要と考えています。
幹線道路沿道等の産業拠点形成
消費者行動の変化に対応した物流改革の動き、デジタル社会の進展によるデータセンターなどのデジタルインフラの需要増大など、都心近郊のインターチェンジ周辺や幹線道路沿道を中心として、産業用地の需要が高まっています。
弊社では、これまで培ってきた市街地整備計画のノウハウを活かして、民間企業による土地区画整理事業や開発行為による産業地開発について、企画から計画、実施までトータルで支援しています。
弊社が取り組んだ「首都圏の市街化調整区域・幹線道路沿道における産業用地開発」では、土地区画整理事業により、市街化区域編入と農振除外を行い、流通拠点へと土地利用転換を図りました。弊社は、事業計画・都市計画・測量・土木設計・事業運営支援などをトータルコーディネートして、円滑な事業化に貢献しました。
地権者の土地利用意向に対応するため、停止条件付売買契約、営農継続希望に対応した事前の土地交換などの対応を図り、速やかに所有権移転等の手続きを行いました。
また、当地区を含めて都心近郊における産業用地開発では、既存市街地においてはまとまった開発適地を見つけることが困難であることから、農地を対象に開発することが多くなります。弊社では、農地の開発にあたって、農業の6次元化による地域振興や周辺営農環境への影響等に配慮した開発計画・法規制の提案、地域未来投資促進法や地区計画を活用した事業化戦略の提案、農政部局との協議対応なども含めて対応しています。

【工事前】

【設計図】
駅前周辺の複合市街地形成
東京都稲城市にある京王電鉄相模原線稲城駅と京王よみうりランド駅の中間地において、危険な崖地や急傾斜地(高低差約40〜60m)の改善、急カーブ・急勾配による事故多発道路等の改善を実施し、住民生活の安全性向上と緑豊かな新たな市街地を創出するため、面積約87haの組合施行に取り組んでいます。
事業の実施にあたっては、事業協力者として大手ゼネコンや大手不動産企業等をパートナーに迎え、在住者と新たな住民等のコミュニティが図れた環境配慮型のまちづくりを目指し進めています。

【工事中】

【施行計画図】
この事例の特徴
当地区では緑豊かな山林が広がっていたこともあり、オオタカやトウキョウサンショウウオ等が生息しており、共存共生できるよう環境アセスメントの手続きを経て保全に向け取組んでいます。
さらに、地域の魅力や価値を向上させるために、所有者の土地活用支援や景観形成ガイドラインによる街並みの整備、地区の共有財産である緑を守り育てながら、持続可能な循環型地域コミュニティの実現を目的としたエリアマネジメント法人とも連携して取組んでいます。
また、高低差約40〜60mの危険な崖地や急傾斜地の整備については、学識経験者等による施工管理委員会を立ち上げ、安全で安心できる環境づくりに努めています。
複合市街地の実現では、魅力ある住宅地の整備と合わせて、大型商業施設やプロ野球新ファーム球場等の誘致にも取り組み、“住んでみたい・住み続けたい”と感じられ、さらに後世にもつながるまちづくりの発展を目指しています。
組合施行の事業再構築
千葉県柏市で事業運営資金等の確保が困難となった組合施行において、事業リスク(事業完了から逆算した事業計画)と権利者リスク(再減歩・賦課金、期間延伸等による負担増加の抑制)を提案し土地区画整理事業の再構築に取り組みました。
再構築では、事業計画(保留地販売含む)・換地設計・工事設計・施行計画等の見直しを支援した結果、保留地販売の強化・支出低減など組合の自助努力により、柏市からの支援も受けられ、再減歩・賦課金等の権利者リスクを回避した再構築を見出すことができました。
【保留地販売スキーム】

この事例の特徴
事業の再構築にあたっては、再減歩・賦課金等の徴収ではなく、収入財源である保留地をより高く円滑に販売する方法に力を入れ提案しました。
保留地の販売では、協賛ハウスメーカー等との連携を図り、販売価格の考え方や購入意欲を高める街のコンセプトづくり、販売スキームなど土地区画整理事業と不動産が一体となった販売計画を提案しました。
また、施行計画等の見直しも行い、早期に保留地が販売できるよう保留地と仮換地との入替え調整にも取り組み、個々の権利者にも再構築の必要性をご理解頂き進めることができました。
弊社では、土地区画整理事業に対して、まちの将来像を創出することに加え、事業経営の視点を持った運営支援が重要と考え、取り組んでいます。

【保留地現地販売】
小規模で柔軟な区画整理への取組、
都市計画道路沿道のまちづくりへの取組
①都市のスポンジ化への対応
人口減少等の進行に伴い、地方都市を中心に多くの都市において、空き家・空き地が不規則に発生する「都市のスポンジ化」が顕在化しつつあります。都市のスポンジ化は、人口密度の低下、まちの魅力の低下、生活利便性の低下、治安や防災性の低下など、様々な問題につながることから、このような状態が放置すれば、都市の衰退を招くおそれが懸念されます。
弊社では、「都市のスポンジ化の解消」や「密集市街地の改善」などの社会問題に対して、これまで培ってきた市街地整備計画のノウハウを活かした「柔らかい区画整理」によって、都市再生に貢献していきたいと考えています。
立地適正化計画と連携して土地区画整理事業を適用する都市のスポンジ化対策の新たな手法である、「空間再編賑わい創出事業」を活用することにより、小規模なエリアでも、換地手法によって散在する空き地等を集約して、地域のまちづくり課題に対応した医療・福祉・子育て支援などの都市機能導入や地域の防災性の向上に資する道路や防災広場の整備を図ることが可能です。
また、「街区が細分化され土地の有効活用が困難なエリア」においては、敷地整序型土地区画整理事業を導入することにより、宅地の大街区化と公共施設の再編を図り、土地の有効活用が可能にすることが可能であり、「接道条件等から単独敷地では土地の有効活用が困難な宅地」においても、周辺宅地と含めた敷地再編を目的とした敷地整序型土地区画整理事業により、土地の有効活用と個別宅地の移転再建を一体的に実現することが可能です。
「小規模で柔軟な区画整理 活用ガイドライン」の策定について
(※出典:~都市のスポンジ化地区における誘導施設整備のための集約換地等の市街地整備手法~、国土交通省)
②都市計画道路沿道のまちづくり
都市計画道路は、人々の移動を支える「交通機能」をはじめ、都市構造や街区の形成を担う「市街地形成機能」、さらには都市の防災性の向上やライフラインの収容等を担う「空間機能」など、多様な機能を有する根幹的な都市施設であり、その早期整備が期待されていますが、既存市街地においては、地権者との合意形成、周辺市街地への影響などの問題から、事業が停滞しているケースが多くなっています。
弊社では、土地区画整理事業などの市街地整備計画のノウハウを活かして、既存市街地における都市計画道路の事業化、沿道まちづくりに取り組んでいます。都市計画道路の整備により影響を受ける地権者と協調してまちづくりの視点で取り組むことにより、地権者の希望する将来像の実現、最適な土地利用の実現が図れると考えています。
弊社が取り組んだ「都市計画道路沿道の事業化検討の調査」では、直接買収による事業化以外に、換地手法を活用した「沿道整備街路事業」や「沿道区画整理型街路事業」による事業化を検討し、地権者の合意形成に配慮した駅前広場整備と商店街再生の一体的まちづくりや沿道住民の希望する住環境の確保、周辺市街地への影響に配慮した都市計画道路整備に併せた区画道路の改修や残地の有効活用等を提案しました。

沿街による土地の玉突き移動のイメージ
(※出典:「沿道整備街路事業ガイダンス」H22、国土交通省)